REQUEST A TOUR If you would like to see this home without being there in person, select the "Virtual Tour" option and your agent will contact you to discuss available opportunities.
In-PersonVirtual Tour

$ 3,200
New
159 Olde Towne PL Markham, ON L3T 4K9
3 Beds
3 Baths
UPDATED:
Key Details
Property Type Townhouse
Sub Type Att/Row/Townhouse
Listing Status Active
Purchase Type For Rent
Approx. Sqft 1500-2000
Subdivision Thornhill
MLS Listing ID N12681720
Style 2-Storey
Bedrooms 3
Property Sub-Type Att/Row/Townhouse
Property Description
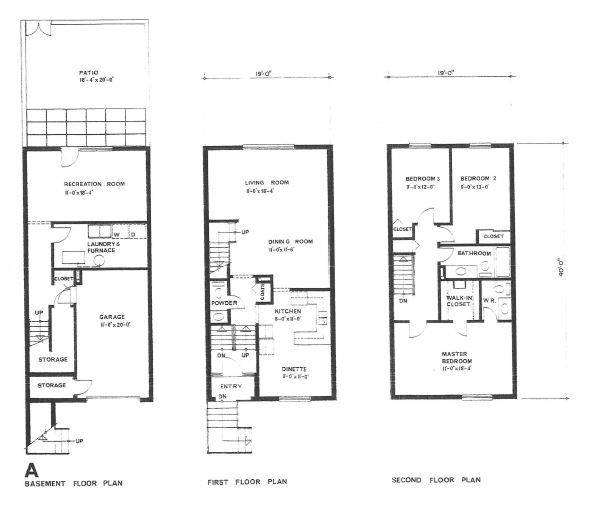
Two Storey Quality Wycliffe Townhome in Thornhill with Hardwood Flooring Throughout the Ground Floor, New Kitchen Cabinets and Finished Basement with Walkout Door to Patio & Fenced Backyard. Great Location at Don Mills Road and Steeles Avenue East. Walking Distance to Supermarket, Shoppers Drug Mart and Banks. Easy Access to Highway 404. Markham Bus Stop at the corner of Don Mills and Steeles. Private Built-in Garage and Private Driveway for Parking of Two (2) Vehicles. All Appliances and Dishwasher Included. Landlord Responsible for Landscaping, Snow Removal and Appliance Repairs. Water Utility Costs Included in Monthly Rent. Prompt Maintenance and Repair Services from Experienced On-site Staff Included in Monthly Rent. Access to Large Private In-ground Swimming Pool for Tenants Only During Summer Months with Certified Life Guards on Duty at all Times. See Attached Floor Plan for Layout & Dimensions.
Location
Province ON
County York
Community Thornhill
Area York
Rooms
Family Room Yes
Basement Finished
Kitchen 1
Interior
Interior Features Other
Cooling Central Air
Laundry Ensuite
Exterior
Parking Features Private
Garage Spaces 1.0
Pool Inground
Roof Type Shingles
Total Parking Spaces 2
Building
Foundation Poured Concrete
Others
Senior Community Yes
ParcelsYN No
Listed by BAYVIEW SUMMIT REALTY INC.

GET MORE INFORMATION
QUICK SEARCH





